株式会社おりとみ
モデルプラン おりとみゼブラ おりとみジラフ おりとみレオパルド おりとみフラミンゴ
おりとみサバンナシリーズ
おりとみレオパルド おりとみレオパルド おりとみレオパルド

おりとみのSAVANNNAシリーズ「ORITOMI LEOPARDO」(おりとみレオパルド)は、新築注文住宅向けのプランです。お客様と一緒に一からつくり上げる、完全自由設計のプランです。
上質で、お客様の個性やライフスタイルに合った住宅をともに考え、創ります。


おりとみレオパルド


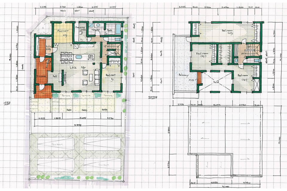
【ORITOMI LEOPARDO】※上記の図は設計の一例です。


モデルプラン おりとみゼブラ おりとみジラフ おりとみレオパルド おりとみフラミンゴ